4300 Stockton Dr

Site Selection Center

Register

4300 Stockton Dr

13,500 Square Feet

  • Location

    4300 Stockton Dr
    North Little Rock, AR, 72117
    Pulaski County
    34.78453, -92.21585
  • Listing Size

    13,500 Square Feet Not Subdividable

  • Property Type

    Manufacturing

    Light Manufacturing

    Warehouse/Distribution

Transportation Infrastructure


Primary Airport
Little Rock National

3.9 Miles

  • Stuttgart Municipal 38.7 Miles
  • Bill And Hillary Clinton National/Adams Field (LIT) 3.8 Miles
  • North Little Rock Muni (ORK) 3.9 Miles

Primary Interstate
I-40

0.5 Miles

  • I-30 2.7 Miles
  • I-40 0.3 Miles
  • I-30 2.6 Miles

Primary Highway
AR-161

0.7 Miles

  • US-70 1.5 Miles
  • State Hwy 161 0.6 Miles
  • US Hwy 167 0.6 Miles

Primary Rail
Union Pacific

0.4 Miles

  • Arkansas Midland 1.4 Miles
  • Union Pacific Railroad 0.3 Miles
  • Arkansas Midland Railroad 1.3 Miles

Primary Navigable Water
Arkansas River

Shallow

2.6 Miles

  • White River

    Shallow

    43 Miles

Primary Water Ports
Little Rock Port Authority

Shallow

5 Miles

  • Pine Bluff Port Terminal Inc

    Shallow

    39.9 Miles
  • Port of Little Rock 8.1 Miles
  • Port of Helena 95 Miles

Data Source

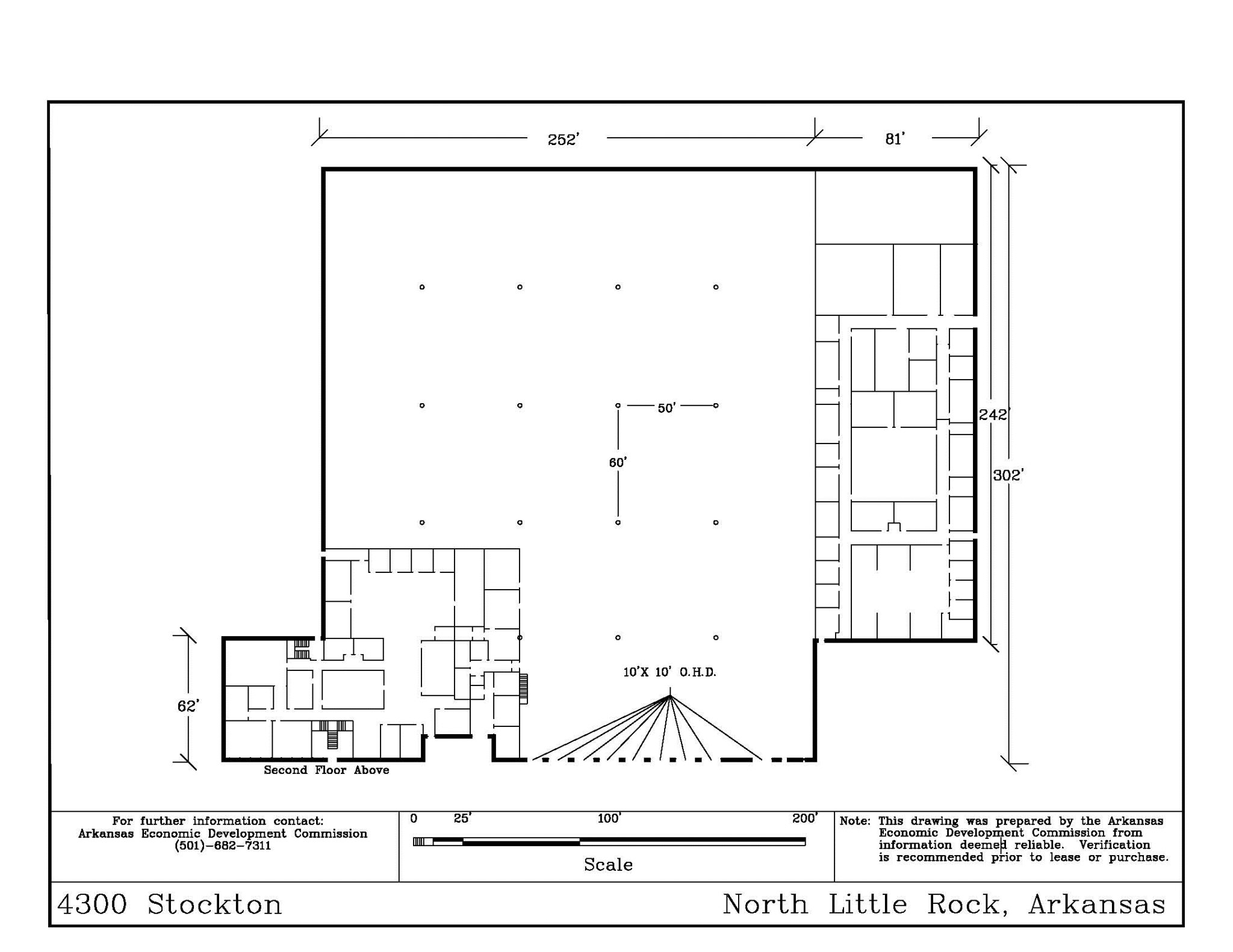
This property is located in the hub of North Little Rock! It is minutes away from Interstate 40 and Highway 67, located at the corner of Stockton Dr and Smokey Ln.
A large part of the building is 26' to 29' est. clear.

Available: September 1, 2023

Specifications


Floors
On Slab Yes
Slab Thickness N/A
Truck Facilities
Has Truck Facilities Yes
Wells 0
Docks 4
Floor-Level Doors 6
Main
Size 106704 sq ft
Column Spacing 50 ft × 60 ft
Ceiling Height 29 ft
Eave Height 16.5 ft
Electricity Entergy Arkansas
Water Municipal
Telecommunications Centurylink or Comcast
Natural Gas Summit Utilities
Sewer Municipal
Fiber-Optic Centurylink or Comcast
Sprinkler System
Fire Protection Sprinklers Yes
Sprinkler Type Wet
Lease Price 5.95 SF YR
Sale Price Not for Sale
Property ID 7704
Lot Size 7.95 Acres
Enterprise Zone Yes
Foreign Trade Zone No
Industrial Park No
Within City Limits Yes
Prior Use Warehouse - Distribution
Free-Standing Yes
Multi-Tenant No
Cranes
Cranes No
Cold Storage
Cold Storage No

Documentation


Documents
PDF (5 MB)
PDF (232 KB)
Photos
JPG (276 KB)
JPG (100 KB)
JPG (53 KB)
JPG (218 KB)
JPG (212 KB)

Demographics


Custom Analysis
Loading, Please Wait ...

Colleen Bailey

501-442-5329 Office
501-442-5329 Mobile

Email

City of North Little Rock

City of North Little Rock
100 Main St North Little Rock, AR 72119

Property Last Updated 3/3/2026 11:59:43 AM


Site Selection Center

Building in Pulaski County, AR

4300 Stockton Dr

Building Image 3
This property is located in the hub of North Little Rock! It is minutes away from Interstate 40 and Highway 67, located at the corner of Stockton Dr and Smokey Ln.
A large part of the building is 26' to 29' est. clear.

Available: September 1, 2023
13,500 Square Feet
Contiguous Available:

Subdividable: No
Multi-Tenant: No

Listing Price

Sale Price

Lease Price
5.95 SF YR

Property Type

  • Manufacturing
  • Light Manufacturing
  • Warehouse/Distribution

This is only a summary of this property. For complete details visit:
https://arkansassiteselection.com/aedc/Property/Detail/7704/4300-Stockton-Dr


Site Selection Center

4300 Stockton Dr

Transportation Infrastructure

  • 4300 Stockton Dr
  • North Little Rock, Arkansas 72117

Airports

  • Primary:
    Little Rock National

    3.9 Miles

  • Additional:
    Stuttgart Municipal

    38.7 Miles

Interstates

  • Primary:
    I-40

    0.5 Miles

  • Additional:
    I-30

    2.7 Miles

U.S. Highways

  • Primary:
    AR-161

    0.7 Miles

  • Additional:
    US-70

    1.5 Miles

Rail

  • Primary:
    Union Pacific

    0.4 Miles

  • Additional:
    Arkansas Midland

    1.4 Miles

Navigable Water

  • Primary:
    Arkansas River

    Arkansas River Miles

  • Additional:
    White River

    43 Miles

Ports

  • Primary:
    Little Rock Port Authority

    5 Miles

  • Additional:
    Pine Bluff Port Terminal Inc

    39.9 Miles

Site Selection Center


4300 Stockton Dr

Property Details

Construction

Floors

On Slab: Yes
Slab Thickness: N/A

Truck Facilities

Truck Facilities: Yes
Wells: 0
Docks: 4
Floor Level Doors: 6

Fire Protection

Sprinkler System

Fire Protection Sprinklers: Yes
Sprinkler Type: Wet

Cranes

Has Cranes: No

Utilities

Electricity

Provider: Entergy Arkansas

Water

Provider: Municipal

Telecommunications

Provider: Centurylink or Comcast

Natural Gas

Provider: Summit Utilities

Sewer

Provider: Municipal

Fiber-Optic

Provider: Centurylink or Comcast

Cold Storage

Has Cold Storage: No


Site Selection Center

4300 Stockton Dr

Space & More Information

Space Size Column Spacing Ceiling Height Eave Height Air Conditioning Heating
Main 106704 Sq Ft 60 × 50 Sq Ft 29 Ft 16.5 Ft No No

More Information

Property Id: 7704 Within City Limits: Yes
Lot Size: 7.95 Acres Renewal Community: No
Enterprise Zone: Yes Former Use: Warehouse - Distribution
Foreign Trade Zone: No Free Standing: Yes
Industrial Park: No Multi-Tenant: No

Site Selection Center

4300 Stockton Dr

Additional Images

Building Image 2 Building Image 4 Building Image 5 Building Image 1

Site Selection Center

4300 Stockton Dr

Demographics


Site Selection Center

4300 Stockton Dr

Ready to learn more about this site?

Colleen Bailey

cbailey@nlr.ar.gov

Office: 501-442-5329
Mobile: 501-442-5329


City of North Little Rock

City of North Little Rock
100 Main St North Little Rock, AR 72119

Entergy Corporation and its subsidiaries, including Entergy Services, LLC, Entergy Arkansas, LLC, Entergy Louisiana, LLC., Entergy Mississippi, LLC, Entergy New Orleans, LLC, Entergy Texas, Inc., (collectively, the “Entergy Companies”) are not licensed to market any real property.

Information about these properties is provided merely to assist in economic development efforts. The Entergy Companies make no representations or warranties whatsoever regarding accuracy or completeness of the information nor the condition or suitability of these properties. Inquiries about any property should be directed to the listing broker for that property. Used only with the permission of the Entergy Companies. Usage restricted.

© 1997 – 2026, Entergy Corporation, All Rights Reserved.

This is only a summary of this property. For complete details visit:
https://arkansassiteselection.com/aedc/Property/Detail/7704/4300-Stockton-Dr

Generating PDF

Your download will begin in a moment.

Email PDF